Tagi

Z028059
Nowy produkt
Pakiet Viessmann kocioł Vitodens 050-W B0HA kondensacyjny jednofunkcyjny w zakresie mocy 3,2-19 kW, wbudowany regulator E3, asystent pierwszego uruchomienia oraz zintegrowany moduł WIFI, palnik Matrix z systemem Lambda Pro. W zestawie z zasobnikiem Vitocell 100-W o pojemności 150l.
5 Przedmiot Przedmioty
Ostatnie egzemplarze!
Data dostępności:
Wiszący gazowy kocioł kondensacyjny
Kocioł Vitodens 050-W firmy Viessmann jest atrakcyjnym cenowo gazowym wiszącym kotłem kondensacyjnym o tradycyjnie wysokiej jakości. Obszerny program osprzętu pozwala stosować Vitodens 050-W z równym powodzeniem w instalacjach nowych, jak i do modernizacji instalacji istniejących.
Jakość produktów firmy Viessmann to coś, na czym można polegać, a atrakcyjny cenowo Vitodens 050-W nie jest wyjątkiem. Kotły wiszące Viessmann znane są nie tylko z innowacyjnej techniki i wydajności, ale także z niezawodności i trwałości. Dzięki zaawansowanej technice montażu ten gazowy kocioł kondensacyjny jest niezwykle kompaktowy i może być montowany nawet w niewielkich wnękach. Nie są wymagane boczne odstępy serwisowe, ponieważ wszystkie przyłącza są łatwo dostępne od przodu.
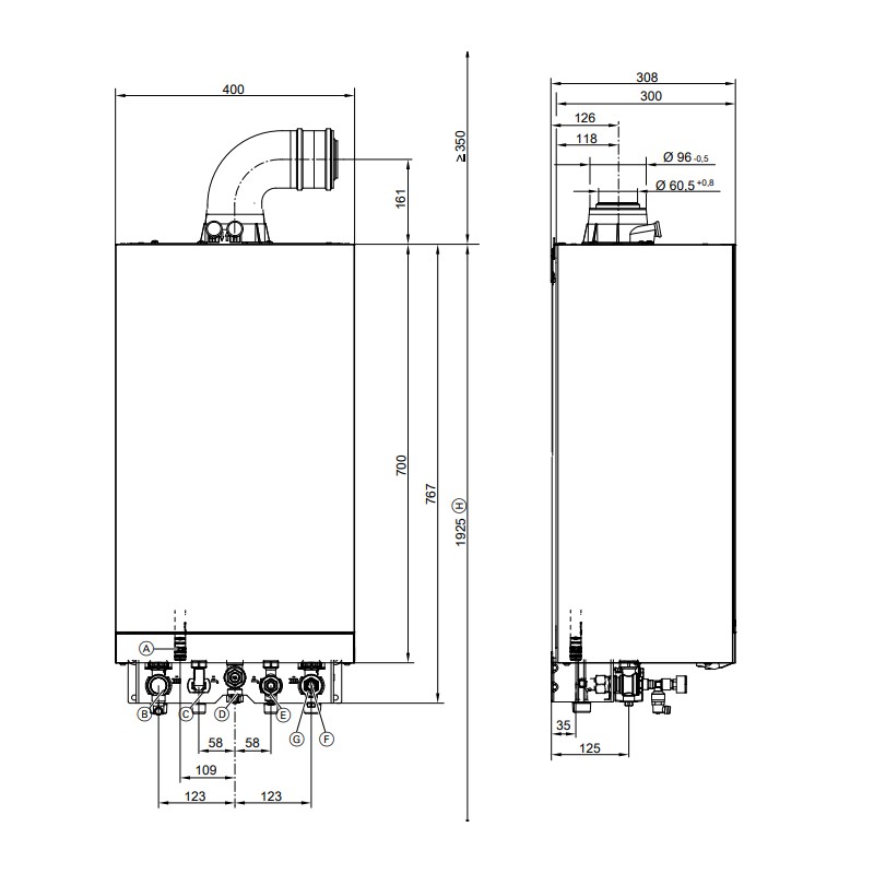
Vitodens 050-W wyróżnia wyjątkowo niski poziom emisji hałasu i dostępność komponentów od przodu, co ułatwia prace serwisowe i konserwacyjne. Przy wymiarach 300 × 400 × 700 (gł. × szer. × wys.) należy do najmniejszych kotłów wiszących w swojej klasie. Ze względu na kompaktowe gabaryty nadaje się doskonale do zastępowania starych urządzeń grzewczych, także przy wspólnym przyłączeniu nawet pięciu kotłów do jednego komina w budynkach wielorodzinnych.
Dostępny jest w zakresie mocy 3,2 do 25 kW (z funkcją booster 29,6 kW) jako kocioł dwufunkcyjny z wbudowanym przepływowym podgrzewaczem wody użytkowej zapewniając wysoki komfort ogrzewania i podgrzewu ciepłej wody użytkowej, przy niezwykle korzystnym stosunku ceny do jakości.
W wersji jednofunkcyjnej dostępny jest w mocy 3,2 do 19 kW lub 3,2 do 25 kW. Dzięki szerokiemu zakresowi modulacji 1:8 jest w stanie pracować z niskich poziomem szumów zapewniając wysoką efektywność procesu kondensacji.
Technologia umożliwiająca zastosowanie mieszanek gazu ziemnego i wodoru do ogrzewania budynków jest już dostępna i na rynku w wielu tysiącach przypadków. W zasadzie gazowe kotły kondensacyjne najnowszej generacji Vitodens już dziś mogą być zasilane w 20 procentach wodorem. Właściciele domów i mieszkań, którzy zdecydują się na te nowoczesne urządzenia wiszące i kompaktowe, są więc idealnie przygotowani na przyszłość.
Do zalet palnika MatriX-Plus należy zaliczyć jego wydajną pracę, cichą pracę i niską emisję. Specjalna powierzchnia MatriX ze stali nierdzewnej jest odporna na wysokie temperatury, co zapewnia niezawodne działanie i długą żywotność.
Kolejną innowacją techniczną jest w pełni automatyczny regulator spalania Lambda Pro. Automatycznie dostosowuje się on do wszystkich rodzajów gazu i zapewnia niezmiennie czyste i wydajne spalanie.
Stal szlachetna robi różnicę. Odporny na korozję wymiennik ciepła Inox-Radial ze stali szlachetnej jest sercem kotła Vitodens 050-W. Bardzo efektywnie przetwarza on zużytą energię na ciepło. Ponadto szczególnie trwała, wysokogatunkowa stal szlachetna zapewnia niezawodność.
Wyświetlacz LED z nowej platformy elektroniki cechuje się bardzo prostym i łatwo zrozumiałym sposobem obsługi oraz wzornictwem w stylu „czarnego panelu”. W prosty sposób, przyciskami można szybko ustawiać temperaturę wody grzewczej i c.w.u. Wartości temperatury i stany robocze wskazywane są na wyświetlaczu cyfrowym.
Gazowe ścienne kotły kondensacyjne Vitodens 050-W z nową platformą elektroniczną posiadają w zależności od wersji zintegrowany interfejs WiFi. W razie potrzeby łączy on instalację grzewczą bezpośrednio z internetem. Obsługa instalacji grzewczej jest bardzo prosta i intuicyjna dzięki aplikacji ViCare. Wyznacza ona kierunek usług cyfrowych i jest w bezpośrednim kontakcie z lokalnym wykonawcą instalacji grzewczej.
Aplikacja ViCare dostarcza informacji o aktualnym stanie pracy systemu energetycznego, a programy czasowe dla centralnego ogrzewania i podgrzewania CWU przyczyniają się do oszczędności kosztów energii. Jest ona kompatybilna z niemal wszystkimi urządzeniami mobilnymi z systemem iOS i Android.

1 Palnik MatriX Plus z systemem kontroli spalania Lambda Pro
2 Wymiennik ciepła Inox-Radial ze stali szlachetnej
3 Wyświetlacz LED z przyciskami dotykowymi
4 Zintegrowany moduł WiFi
5 Energooszczędna pompa
6 Zintegrowane naczynie przeponowe c.o. (pojemność 8 litrów)
7 Płytowy wymiennik ciepła (tylko kocioł dwufunkcyjny)
Typ kotła: kocioł jednofunkcyjny
Zakres znamionowej mocy cieplnej (50/30°C): 3,2 – 19,0 kW
Zakres znamionowej mocy cieplnej (80/60°C): 2,9 – 17,4 kW
Zakres znam. mocy cieplnej przy podgrzewie wody użytkowej: -
Moc akustyczna (wg EN ISO 15036-1): 33 – 47 dB(A)
Klasa NOx: 6
Maks. przepływ wody użytkowej
przy ΔT 30 K według EN 13203: -
Komfort korzystania z wody użytkowej
zgodnie z normą EN 13203: -
Pojemność przeponowego naczynia wzbiorczego: 8 l
Dopuszczalne ciśnienie robocze: 3 bar, 0,3 MPa
Masa: 33 kg
Wymiary: 300 × 400 × 700 mm
Przyłącze spalin: 60 ∅ mm
Przyłącze powietrza dolotowego: 100 ∅ mm
Klasa efektywności energetycznej: A / -
Kotły Vitodens 050-W zostały przetestowane i dopuszczone do pracy z gazem ziemnym zgodnie z normą
EN 15502. Przełączenie w obrębie grup gazowych E / Lw nie jest konieczne.
Moc grzewcza kotła podana jest dla procesu podgrzewania wody użytkowej od 10 do 45°C.
Pojemnościowy podgrzewacz c.w.u.
Pojemnościowy podgrzewacz ciepłej wody użytkowej do montażu pod kotłem wiszącym, np. Vitodens x00-W, co pozwala zaoszczędzić miejsce.

Ogrzewanie ciepłej wody użytkowej za pomocą urządzeń ściennych - opracowany specjalnie do podłączenia urządzeń naściennych
Cała woda jest podgrzewana - za pomocą pośredniej wężownicy sięgającej do dna zbiornika.
Małe straty ciepła - dzięki bardzo efektywnej i uniwersalnej izolacji termicznej.
Chroniony przed korozją - stal z powłoką emaliowaną Ceraprotect
Dodatkowa ochrona katodowa za pomocą anody magnezowej - anoda prądu stałego dostępna jako wyposażenie dodatkowe
Vitocell 100-W jest przystępnym cenowo pojemnościowym podgrzewaczem ciepłej wody użytkowej. W wersji o pojemności do 150 litrów można go ustawić pod kotłem wiszącym (np. gazowym kotłem kondensacyjnym Vitodens 300-W), oszczędzając w ten sposób miejsce. Wraz z generatorem ciepła tworzy optymalną wizualnie i termicznie całość. Podobnie jak wszystkie pojemnościowe podgrzewacze ciepłej wody użytkowej, również Vitocell 100-W posiada wysoce skuteczną izolację cieplną na całej powierzchni, co zapobiega stratom ciepła.
Pojemnościowe podgrzewacze ciepłej wody użytkowej Vitocell 100 z powłoką emaliowaną Ceraprotect spełniają wszystkie wymagania dotyczące komfortowego i ekonomicznego podgrzewu ciepłej wody użytkowej i są liderem wśród pojemnościowych podgrzewaczy ciepłej wody użytkowej z powłoką emaliowaną. Powłoka emaliowana Ceraprotect zapewnia podgrzewaczowi ciepłej wody użytkowej bezpieczną i trwałą ochronę przed korozją.

1 Zbiornik podgrzewacza i wężownica grzejna ze stali, z emaliowaną powłoką Ceraprotect
2 Anoda magnezowa
3 Podgrzew całej objętości wody w zbiorniku dzięki wężownicy grzejnej poprowadzonej w dół aż do dna podgrzewacza
4 Panel próżniowy
5 Wysokiej jakości całkowita izolacja cieplna z twardej pianki poliuretanowej (bezfreonowej)
Pojemność: 150 l
Pojemność wody grzewczej: 6,5 l
Objętość brutto: 156,5 l
Przyłącza (gwint zewnętrzny): 1 R
- Zasilanie i powrót wody grzewczej: 3/4 R
- Ciepła i zimna woda użytkowa: 3/4 R
- Cyrkulacja:
Dopuszczalne temperatury:
- Po stronie wody grzewczej: 160 °C
- Po stronie wody użytkowej: 95 °C
Ilość ciepła dyżurnego: 1,041 kWh/24 h
Wymiary: 634 x 634 x 958
Masa: 61 kg
Powierzchnia grzewcza: 1,0 m2
Klasa efektywności energetycznej: B
Kolor: vitopearlwhite (biały)
Pakiet VC 20CS/1-5 ecoTEC plus Kocioł gazowy kondensacyjny jednofunkcyjny z...
Pakiet VC 20CS/1-5 ecoTEC plus Kocioł gazowy kondensacyjny jednofunkcyjny z...
Pakiet VC 20CS/1-5 ecoTEC plus Kocioł gazowy kondensacyjny jednofunkcyjny z...
Pakiet VC 20CS/1-5 ecoTEC plus Kocioł gazowy kondensacyjny jednofunkcyjny z...
Pakiet VC 20CS/1-5 ecoTEC plus Kocioł gazowy kondensacyjny jednofunkcyjny z...
Pakiet VC 20CS/1-5 ecoTEC plus Kocioł gazowy kondensacyjny jednofunkcyjny z...
Pakiet VC 20CS/1-5 ecoTEC plus Kocioł gazowy kondensacyjny jednofunkcyjny z...
Pakiet VC 20CS/1-5 ecoTEC plus Kocioł gazowy kondensacyjny jednofunkcyjny z...
Pakiet VC 20CS/1-5 ecoTEC plus Kocioł gazowy kondensacyjny jednofunkcyjny z...
Pakiet VC 20CS/1-5 ecoTEC plus Kocioł gazowy kondensacyjny jednofunkcyjny z...
Pakiet Termet SILVER PRO 20 Kocioł kondensacyjny 20 kW, jednofunkcyjny,...
Pakiet kocioł kondensacyjny jednofunkcyjny EcoCondens Silver PRO 20 1f z...
Pakiet kocioł kondensacyjny jednofunkcyjny EcoCondens Silver PRO 20 1f z...
Termet EcoCondens Silver PRO 25 kocioł kondensacyjny jednofunkcyjny 1f z...
Termet EcoCondens Silver PRO 25 kocioł kondensacyjny jednofunkcyjny 1f z...
Termet EcoCondens Silver PRO 25 kocioł kondensacyjny jednofunkcyjny 1f z...
Keller Cyrkon Kocioł kondensacyjny jednofunkcyjny 20 kW + Zasobnik c.w.u...
Kocioł gazowy kondensacyjny jednofunkcyjny GOLD PLUS II 20 o obciążeniu...
Kocioł gazowy kondensacyjny jednofunkcyjny GOLD PLUS II 20 o obciążeniu...
Termet Gold Plus II 25, zasobnik SWK 140 L, regulator Termet ST-292 V2...
Termet Gold Plus II 25, zasobnik SWK 120 L, regulator Termet ST-292 V2...
Termet Gold Plus II 25, zasobnik SWK 100 L, regulator Termet ST-292 V2...
Termet Gold Plus II 20, zasobnik SWK 100 L, regulator Termet ST-292 V2...
Termet Gold Plus II 20, zasobnik SWK 120 L, regulator Termet ST-292 V2...
Termet Gold Plus II 20, zasobnik SWK 140 L, regulator Termet ST-292 V2...
Termet Gold Plus II 25, zasobnik SWK 100 L, regulator Termet ST-292 V3...
Termet Gold Plus II 25, zasobnik SWK 120 L, regulator Termet ST-292 V3...
Termet Gold Plus II 25, zasobnik SWK 140 L, regulator Termet ST-292 V3...
Zestaw Bosch CONDENS GC2300iW 20P Kocioł gazowy, wiszący, zamknięta komora...
Bosch CONDENS GC2300iW 15P Kocioł gazowy, wiszący, zamknięta komora spalania,...